



La chaudière à fioul à condensation Domusa JAKA HFD 40 CONDENS OD, avec une puissance utile de 38,7 kW (à 80°C/60°C), représente la solution parfaite pour les installations extérieures dans de grands espaces nécessitant un rendement élevé et une fiabilité maximale. Ce modèle combine efficacité énergétique, matériaux de première qualité et un design optimisé pour résister aux intempéries. Elle est idéale pour ceux qui recherchent confort thermique, durabilité et une chaudière robuste pour un usage intensif.
Grâce à la technologie de condensation, cette chaudière exploite au maximum les gaz de combustion, récupérant la chaleur latente et atteignant des rendements supérieurs à 103% sur le pouvoir calorifique inférieur (PCI). Ce processus permet une économie d'énergie allant jusqu'à 30% par rapport aux chaudières traditionnelles, réduisant significativement la consommation de combustible et les coûts de fonctionnement. Sa certification énergétique classe A, conforme à la directive européenne ErP, garantit un fonctionnement durable et efficace.
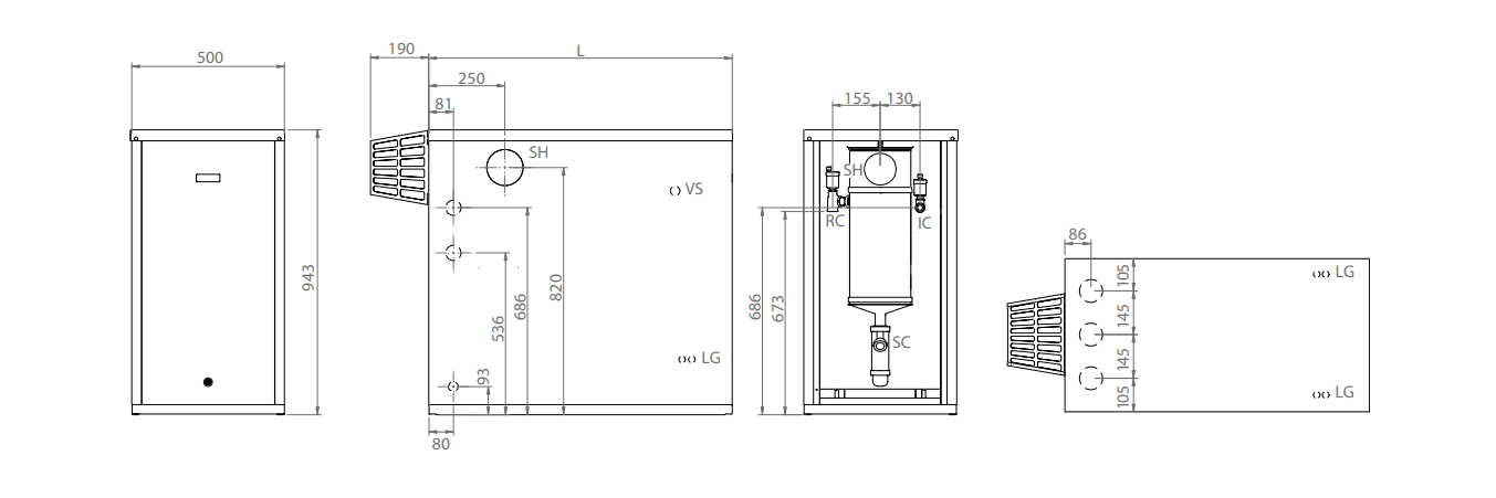
La chaudière JAKA HFD 40 CONDENS OD est conçue pour résister aux conditions les plus exigeantes des installations en plein air. Ses enveloppes étanches, recouvertes d'un revêtement EPOXY, protègent l'équipement contre l'humidité, la pluie et les variations extrêmes de température. Ce design assure un rendement constant et sécurisé, même dans des climats difficiles, tout en optimisant l'espace intérieur des habitations ou installations.
Le corps de la chaudière est fabriqué en fonte, un matériau connu pour sa résistance à l'usure et sa durabilité à long terme. En outre, elle intègre un condenseur en acier inoxydable qui maximise le transfert thermique et assure un rendement optimal pendant toute la durée de vie de l'équipement.
Grâce à une isolation acoustique avancée et à son brûleur étanche, cette chaudière fonctionne de manière extrêmement silencieuse, garantissant un confort sonore tant à l'extérieur qu'à l'intérieur des espaces à chauffer.
Le modèle JAKA HFD 40 CONDENS OD est conçu pour faciliter son installation dans une large variété de configurations. L'évacuation des gaz peut se faire par des tubes en polypropylène, ce qui simplifie le montage et réduit les coûts d'installation. De plus, son panneau de commande intuitif comprend des fonctions telles que thermostat anti-gel, thermohydromètre et un interrupteur lumineux marche/arrêt, facilitant son utilisation et son réglage.
La chaudière Domusa JAKA HFD 40 CONDENS OD est une solution idéale pour les grandes habitations, locaux commerciaux et autres installations nécessitant un système de chauffage puissant et fiable à l'extérieur. Sa robustesse, sa haute capacité et son design résistant en font une option sûre et efficace pour les climats exigeants.
Avec la Domusa JAKA HFD 40 CONDENS OD, l'utilisateur bénéficie d'une chaudière haute performance conçue pour durer, optimiser le confort thermique et minimiser l'impact environnemental.