



The Domusa JAKA HFD 40 CONDENS OD oil-fired condensing boiler, with an effective output of 38.7 kW (at 80°C/60°C), is the perfect solution for outdoor installations in large spaces requiring high performance and maximum reliability. This model combines energy efficiency, top-quality materials, and an optimised design to withstand harsh weather conditions. It is ideal for those seeking thermal comfort, sustainability, and a robust boiler for intensive use.
Thanks to condensing technology, this boiler makes the most of combustion gases, recovering latent heat and achieving efficiencies over 103% on the lower calorific value (L.C.V.). This process allows for up to 30% energy savings compared to traditional boilers, significantly reducing fuel consumption and operational costs. Its A energy class certification, in accordance with the European ErP directive, ensures sustainable and efficient operation.
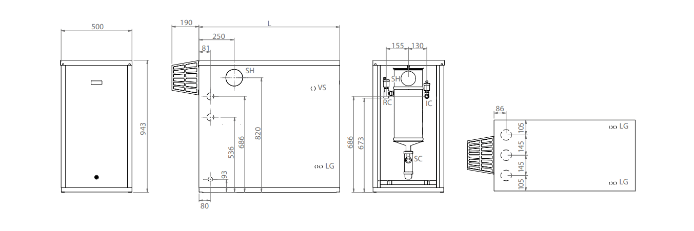
The JAKA HFD 40 CONDENS OD boiler is designed to withstand the most demanding conditions in outdoor installations. Its sealed enclosures, covered with EPOXY coating, protect the equipment against moisture, rain, and extreme temperature variations. This design ensures constant and safe performance even in adverse climates, while also optimising the interior space of homes or installations.
The boiler body is made of cast iron, a material known for its wear resistance and long-term durability. Additionally, it features a stainless steel condenser that maximises thermal transfer and ensures optimal performance throughout the equipment's lifespan.
Thanks to advanced acoustic insulation and its sealed burner, this boiler operates extremely quietly, ensuring acoustic comfort both outside and inside the heated spaces.
The JAKA HFD 40 CONDENS OD model is designed to facilitate installation in a wide variety of configurations. Gas evacuation can be carried out using polypropylene pipes, simplifying assembly and reducing installation costs. Moreover, its intuitive control panel includes features such as an anti-freeze thermostat, a thermohydrometer, and a luminous on/off switch, making it easy to use and adjust.
The Domusa JAKA HFD 40 CONDENS OD boiler is an ideal solution for large homes, commercial premises, and other installations requiring a powerful and reliable heating system outdoors. Its robustness, high capacity, and resilient design make it a safe and efficient choice for demanding climates.
With the Domusa JAKA HFD 40 CONDENS OD, the user enjoys a high-performance boiler designed to last, optimise thermal comfort, and minimise environmental impact.